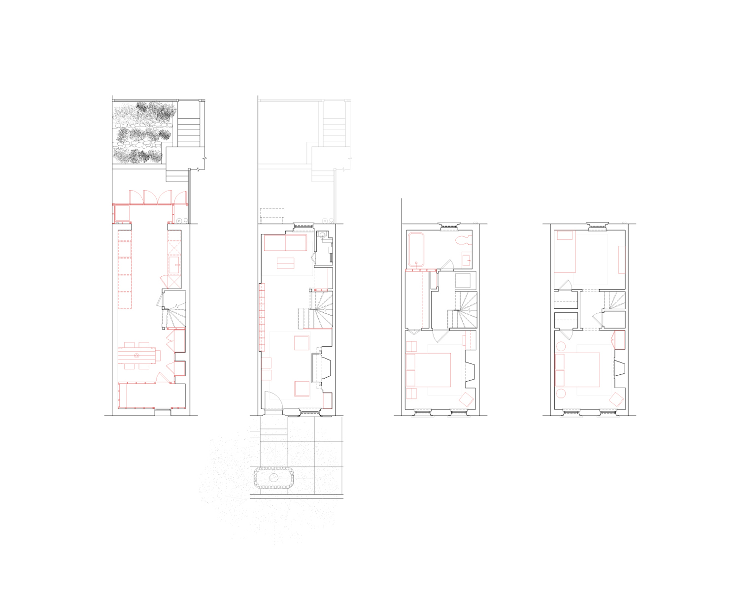
Design update for a townhouse with a compact footprint, four story layout, and tight winder stair, located within a complex of historic buildings.
Queen Village Residence
Client: Undisclosed
Location: Philadelphia, PA
Date: 2025 - current
Queen Village Residence
Client: Undisclosed
Location: Philadelphia, PA
Date: 2025 - current