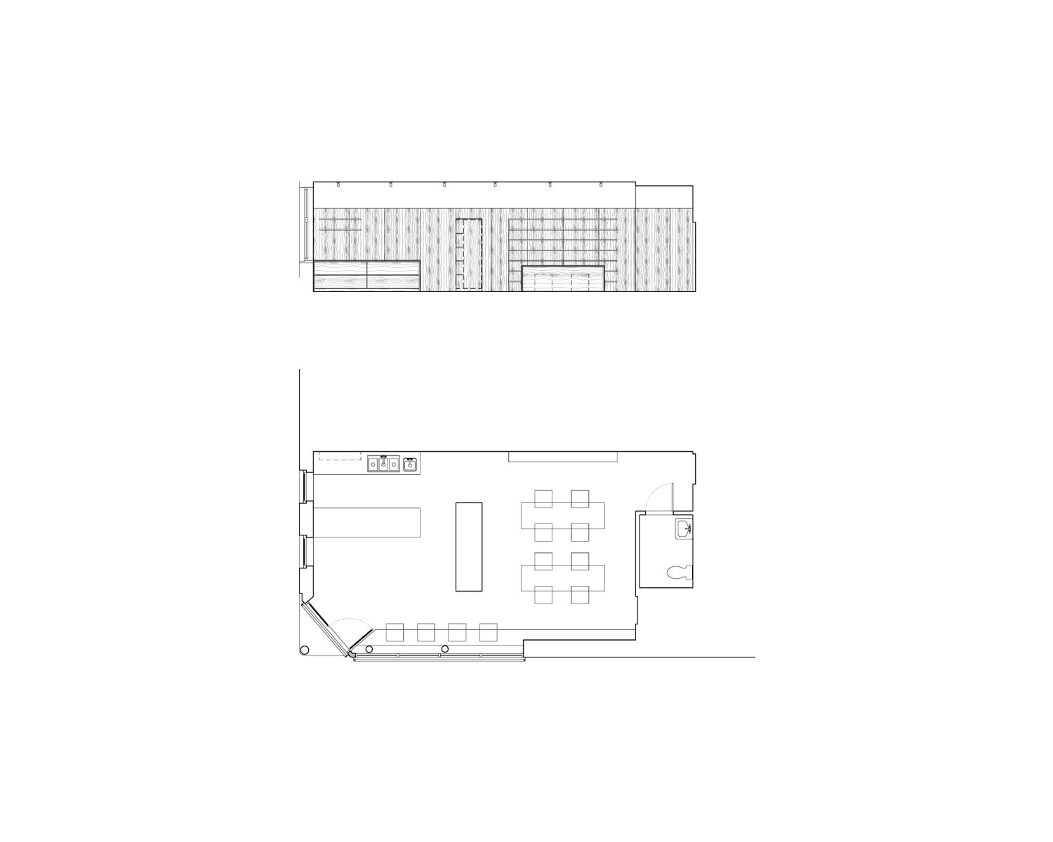
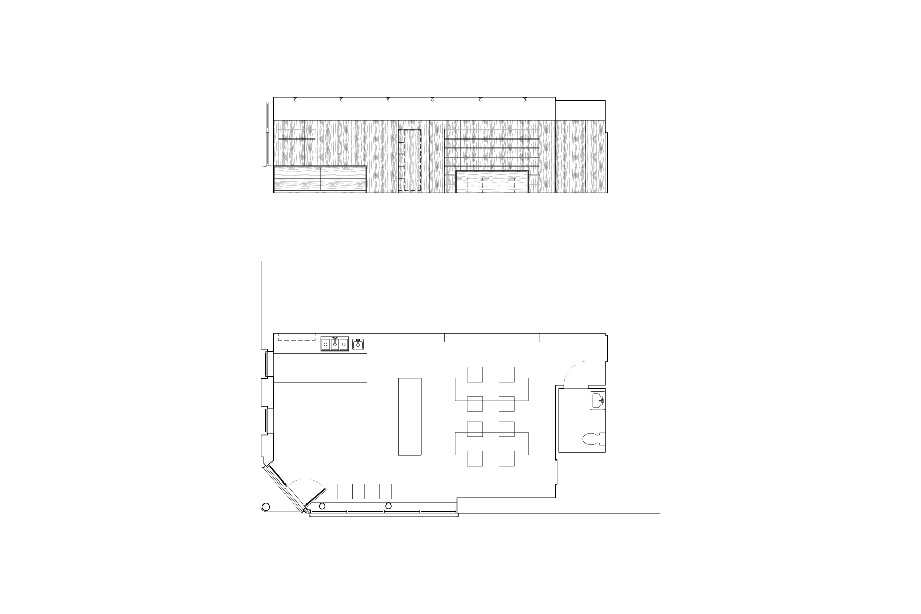
A low-budget coffee shop and community center constructed from a single material. 


Brownsville Coffee Shop  

Client:                   The Hill Coffee Shop
Location:              Brownsville Brooklyn
Date:                     2020
Role:                     Designer w/ Griffin Ofiesh