︎

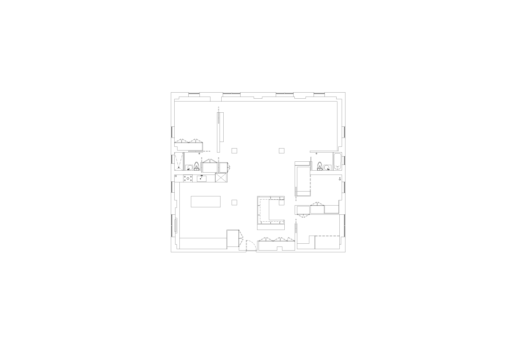
● Axon of physical model / Lower East Side Apartment / Davies Toews / Role: Project Manager / New York, NY (2016-18) ● Floor plan / Lower East Side Apartment / Davies Toews / Role: Project Manager / New York, NY (2016-18) ● Views to and from kitchen / Lower East Side Apartment / Davies Toews / Role: Project Manager / New York, NY (2016-18) ● View of moon door and shelving / Lower East Side Apartment / Davies Toews / Role: Project Manager / New York, NY (2016-18) ● Detail views / Lower East Side Apartment / Davies Toews / Role: Project Manager / New York, NY (2016-18) ● Existing (top) and Proposed (bottom) plans / Fifth Ave Apartment / Davies Toews / Role: Project Manager / New York, NY (2016-18) ● Demolition view / Fifth Ave Apartment / Davies Toews / Role: Project Manager / New York, NY (2016-18) ● Demolition views / Fifth Ave Apartment / Davies Toews / Role: Project Manager / New York, NY (2016-18) ● Diagonal views through renovated space / Fifth Ave Apartment / Davies Toews / Role: Project Manager / New York, NY (2016-18) ● View to living area from dining / Fifth Ave Apartment / Davies Toews / Role: Project Manager / New York, NY (2016-18) ● Living area and large pocket door / Fifth Ave Apartment / Davies Toews / Role: Project Manager / New York, NY (2016-18) ● Central Park view from primary bedroom / Photo by Maya Alexander / Fifth Ave Apartment / Davies Toews / Role: Project Manager / New York, NY (2016-18) ● Kitchen detail / Fifth Ave Apartment / Davies Toews / Role: Project Manager / New York, NY (2016-18) ● Views of kitchen / Fifth Ave Apartment / Davies Toews / Role: Project Manager / New York, NY (2016-18) ● Custom door pull detail and tile detail / Fifth Ave Apartment / Davies Toews / Role: Project Manager / New York, NY (2016-18) ● Study models / Germantown Barn / Frederick Tang Architecture / Role: Project Manager / Brooklyn, NY (2019-21) ● Exterior elevations / Germantown Barn / Frederick Tang Architecture / Role: Project Manager / Brooklyn, NY (2019-21) ● Exterior view/ Germantown Barn / Frederick Tang Architecture / Role: Project Manager / Brooklyn, NY (2019-21) ● View of loft space / Germantown Barn / Frederick Tang Architecture / Role: Project Manager / Brooklyn, NY (2019-21) ● Skylight over stair / Germantown Barn / Frederick Tang Architecture / Role: Project Manager / Brooklyn, NY (2019-21) ● View of dining area and kitchenette / Germantown Barn / Frederick Tang Architecture / Role: Project Manager / Brooklyn, NY (2019-21) ● Massing models / Martha's Vineyard / Davies Toews / Role: Designer, Concept Design / Martha's Vineyard, MA (2016-17) ● Site studies / Martha's Vineyard / Davies Toews / Role: Designer, Concept Design / Martha's Vineyard, MA (2016-17) ● Site collage w/ massing / Martha's Vineyard / Davies Toews / Role: Designer, Concept Design / Martha's Vineyard, MA (2016-17) ● Study model view / Martha's Vineyard / Davies Toews / Role: Designer, Concept Design / Martha's Vineyard, MA (2016-17) ● Study model view / Martha's Vineyard / Davies Toews / Role: Designer, Concept Design / Martha's Vineyard, MA (2016-17) ● Study model view / Martha's Vineyard / Davies Toews / Role: Designer, Concept Design / Martha's Vineyard, MA (2016-17) ● Study model view / Martha's Vineyard / Davies Toews / Role: Designer, Concept Design / Martha's Vineyard, MA (2016-17)